- 10月 07 週三 202020:09
人本示範道路的輪椅
- 8月 02 週五 201908:45
滑軌外掛式車門,但附帶滑塞式效果(加州BART新車)
美國加州舊金山灣區的捷運系統(Bay Area Rapid Transit, BART)於1972年開始營運,
營運四十餘年以來的車輛一直採用藏在車體裡的車門(有時被稱作內藏門,如EMU500~800一般的設計),
這車門被嫌吵: 1.行駛時,門片會在餘隙之間震動並發出噪音,2.餘隙也讓行駛的噪音傳入車內,尤其是地下段行駛的噪音。
大約2018年起,全新的電聯車開始上線,
- 5月 12 週日 201908:15
電扶梯緊急停止按鈕形式
- 3月 26 週二 201916:22
萬大線樹林段的高架橋柱不在道路中心線
- 11月 05 週日 201714:27
機車空氣汙染量
[交通工具空氣污染物排放標準]
小客車2012年起新車型(即小客車五期環保)
機車2017起新車型(即機車六期環保)
汽油小客車:CO:1g/km THC+NMHC:0.1g+0.068g/km NOx:0.06g/km
機車: CO:1.14g/km HC:0.38g/km NOx:0.07g/km
注意分母是km, 非ppm 也就是機車雖然排氣量小 但是每公里
汙染物不見得比較少 畢竟引擎沒辦法做得像汽車那樣完善
- 10月 05 週四 201719:59
傳說中的「中央新村老國代」要求興建小碧潭支線
- 9月 07 週四 201718:09
VW頂級商用車Crafter的尺寸相當於Coaster小巴
- 8月 29 週二 201720:06
台北捷運環狀線電聯車進信義快速道路隧道
- 8月 15 週二 201702:09
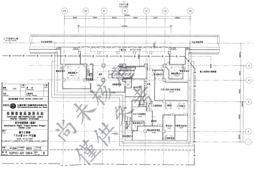
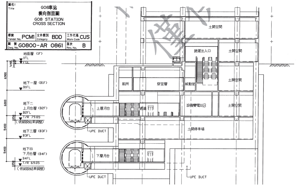
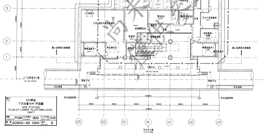
桃園捷運綠線特殊車站設計
桃園捷運綠線G08、G09二站將有特殊的設計,詳見圖:
資料來源為公開閱覽的基本設計工程圖說-參考圖.pdf
↓G08下層月台

↓G08剖面(註:於2017年11月土建統包標公開閱覽的版本,圖中兩處高度5400增加至5750,且兩條隧道的深度均往下調)

↓G09下層月台

↓G09剖面(註:同G08,新版本圖中兩處高度5400增加至5750,且兩條隧道的深度均往下調)

注意G09車站在站房相反側也有類似月台的構造物,是「安全通道」
綠線G07~G09之間疑似為了不做上下行間的連絡通道,而在路線段的潛盾隧道內增闢一個獨立的「安全通道」(寬1120mm),
使得潛盾隧道內半徑加大為3750mm
(其他路段潛盾隧道內半徑比照台北捷運高運量,為2800mm)
註:桃園綠線電聯車寬度定得特別寬,為3030mm,等同於機場捷運,
運能相同的台北捷運三鶯線的車寬卻僅為2600~2800mm。
桃園綠線電聯車的車門位置並未被要求與機場捷運一致、兩轉乘站G18、G32與機場捷運之間為垂直轉乘,並無直通運轉設計)
↓G07(不含)~G10 (不含) 路段採用此較大半徑的潛盾隧道

路寬資訊:
綠線所經特別窄的路段僅G08、G09車站
G07是火車站,
G08“本路段桃園市中正路現況約為15公尺道路”(依據民102年9月4日說明會簡報)
G09“本路段桃園市中正路現況約為15公尺道路”(依據同上)
G10“桃園市中正路現況約為30公尺道路”(依據同上)
註:因地主反對而暫時不設出入口的車站是G09






